-With approved building licence-
Rustic building plot of approximately 16.000 m² situated in Selva, with beautiful views to the Serra de Tramuntana.
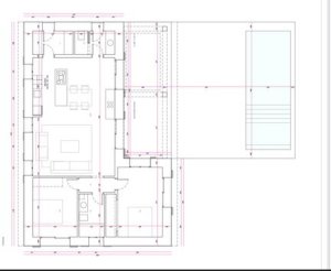
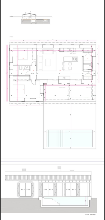
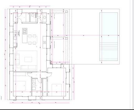
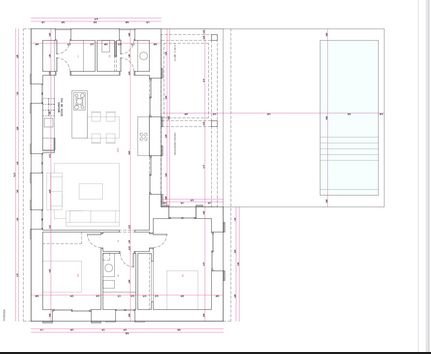
A Preliminary project with approved licence is available, to build a detached single-family house of 150 m² of surface in one floor, swimming pool of 32 m² (8 x 4 m.) and store room of 40 m² associated to the house (old hut which is completely restored).
The house is all on one level with living/dining room, kitchen, bathroom and two bedrooms, although the project can always be modified and extended up to 240 m².
The property has two wells, one of them of borehole and the other of filtration, also exists water canalisation with water meter of the town hall, possibility of electrical connection of meter few meters of the property.
Good access by tarmac road, accessing by dirt road in good condition, with only one access that ends in the property itself,
The property has a good location, not far from the residential area and only a couple of minutes drive from the village of Campanet.
The beaches of Pollensa Bay and Alcudia are only 20 minutes drive away.
The town of Inca with all amenities is only a 15 minute drive away.
Kitchen
Laundry room
Bathtube
Shower
Chimney
Garden
Sun lounger
Terrace
Garage/Parking
Views (To Countryside)

In compliance with Law 34/2002, of July 11, on Services of the Information Society and Electronic Commerce (LSSI-CE), VILLAS PLANET SL informs that it is the owner of the https website: //www.villasplanet.com/es. In accordance with the requirement of article 10 of the aforementioned Law, VILLAS PLANET SL informs of the following data:
The owner of this website is VILLAS PLANET SL, with CIF B57264848 and registered office at MAR I ESTANY, 1 LOCAL A 07400, ALCUDIA (ILLES BALEARS), registered in the Mercantile Registry, in volume 2050, folio 2, PM sheet 46696 and registration 5. The email address for contacting the company is: info@villasplanet.com
User and responsibility regime
The navigation, access and use of the VILLAS PLANET SL website confers the user condition, by which all conditions are accepted, from browsing the VILLAS PLANET SL website, of use here & iacute; established without prejudice to the application of the corresponding mandatory legal regulations according to the case.
The VILLAS PLANET SL website provides a great diversity of information, services and data. The user assumes responsibility for the correct use of the website. This responsibility will extend to:
· The veracity and legality of the information provided by the user in the forms issued by VILLAS PLANET SL for access to certain content or services offered by the web.
· The use of the information, services and data offered by VILLAS PLANET SL contrary to the provisions of these conditions, the Law, morals, good customs or public order, or that of any other so that they may involve injury to the rights of third parties or the same functioning of the website.
Link policy and disclaimers
VILLAS PLANET SL is not responsible for the content of the websites to which the user can access through the links established on its website and declares that in no case shall proceed & aacute; to examine or exercise any type of control over the content of other sites on the network. Likewise, neither guarantee & aacute; the technical availability, accuracy, veracity, validity or legality of sites outside its property that can be accessed through the links.
VILLAS PLANET SL declares that it has taken all the necessary measures to avoid any damage to the users of its website, which may derive from browsing its website. Consequently, VILLAS PLANET SL is not responsible, in any case, for any damage that the user may suffer from browsing the Internet.
Modifications
VILLAS PLANET SL reserves the right to make the modifications it deems appropriate, without prior notice, in the content of its website. Both in relation to the contents of the website, as in the conditions of use of the same, or in the general conditions of contracting. Such modifications may be made through its website by any form admissible by law and will be enforced during the time they are published on the website and until they are validly modified by subsequent ones.
Online booking services
Certain contents of the VILLAS PLANET SL website contain the possibility to book online. The use of them will require & aacute; the mandatory reading and acceptance of the general booking conditions established for this purpose by VILLAS PLANET SL.
Data protection
In accordance with the provisions of the regulations in force in Personal Data Protection, we inform you that your data will be incorporated into the treatment system owned by VILLAS PLANET SL with CIF B57264848 and registered office at MAR I ESTANY, 1 LOCAL AT 07400, ALCUDIA (ILLES BALEARS), in order to facilitate, expedite and fulfill the commitments established between both parties. In compliance with current regulations, VILLAS PLANET SL informs that the data will be kept for the period strictly necessary to comply with the precepts mentioned above.
We inform you that we will treat your data according to the existence of your consent and the contractual relationship we have with you.
VILLAS PLANET SL informs you to proceed & aacute; to treat the data in an online, loyal, transparent, adequate, pertinent, limited, exact and up-to-date manner. That is why VILLAS PLANET SL undertakes to adopt all reasonable measures so that they are suppressed or rectified without delay when they are inaccurate.
In accordance with the rights conferred on it by current regulations on data protection, you may á exercise the rights of access, rectification, limitation of treatment, suppression, portability and opposition to the processing of your personal data as well as of the consent given for the treatment of the same, directing your request to the postal address indicated above or to the email info@villasplanet.com
You can & aacute; Go to the competent Control Authority to submit the claim you deem appropriate.
SSL Certificate (Secure Sockets Layer)
The SSL CERTIFICATE provides authentication, privacy and information security between VILLAS PLANET SL and the user.
VILLAS PLANET SL has a security certificate that is used by SSL CERTIFICATE to make secure connections.
In this process several parameters are established to make the connection securely and it is established using preset keys, encoding and decoding all the data sent until the connection is closed.
Intellectual and industrial property
VILLAS PLANET SL by s & iacute; herself or as an assignee, she is the owner of all the intellectual and industrial property rights of her website, as & iacute; as of the elements contained therein (by way of example, images, sound, audio, video, software or texts; brands or logos, color combinations, structure and design, selection of materials used, computer programs necessary for its operation, access and use, etc.), owned by VILLAS PLANET SL. Therefore, works protected as intellectual property by the Spanish legal system will be, if applicable to both Spanish and Community regulations in this field, as well as international treaties related to the subject and signed by Spain.
All rights reserved. Under the provisions of the Law on Intellectual Property, reproduction, distribution and public communication, including its method of making available all or part of the contents, are expressly prohibited. of this web page, for commercial purposes, on any medium and by any technical means, without the authorization of VILLAS PLANET SL.
The user undertakes to respect the rights of Intellectual and Industrial Property owned by VILLAS PLANET SL. I will be able to View the elements of the portal and even print, copy and store them on the hard drive of your computer or on any other physical medium as long as it is uniquely and exclusively for your personal and private use. The user must & aacute; refrain from suppressing, altering, evading or manipulating any protection device or security system that was installed in the pages of VILLAS PLANET SL.
Legal actions, applicable legislation and jurisdiction
VILLAS PLANET SL also reserves the right to file civil or criminal actions it deems appropriate for the improper use of its website and contents, or for breach of these conditions.
The relationship between the user and the provider will be governed. by the current regulations and of application in the Spanish territory. Should any dispute arise, the parties may submit their disputes to arbitration or go to the ordinary jurisdiction in compliance with the rules on jurisdiction and competence in this regard. VILLAS PLANET SL has its address in ILLES BALEARS, Spain.

SOCIAL NETWORKS PRIVACY POLICY
In accordance with the provisions of current regulations on Personal Data Protection (RGPD) and the Law 34/2002, of July 11, on Services of the Information Society and Electronic Commerce (LSSI-CE), VILLAS PLANET SL informs users that it has proceeded to
Create a profile on the Social Networks Facebook, Twitter, Instagram, Pinterest, Linkedin, with
the main purpose of advertising your products and services.
Data of VILLAS PLANET SL:
CIF: B57264848
ADDRESS: MAR I ESTANY, 1 LOCAL AT 07400, ALCUDIA (ILLES BALEARS) EMAIL:
info @ villasplanet .com
WEB DOMAIN: https://www.villasplanet.com/es
The user has a profile on the same Social Network and has decided to join the page created by
VILLAS PLANET SL, showing as & iacute; interest in the information that is published on the Network. By joining
our page, you provide us with your consent to the processing of personal data published in your profile.
The user can access at all times the privacy policies of the Social Network itself, as & iacute;
how to configure your profile to guarantee your privacy.
VILLAS PLANET SL has access to and processes that users public information, especially its contact name. These data are only used within the Social Network itself. They are not built into any file.
In relation to the rights of access, rectification, limitation of processing, deletion, portability and opposition to the processing of your data, which you have and which may be
exercised before VILLAS PLANET SL, in accordance with the GDPR, must take into account the following
nuances:
Access: Vendr & aacute; defined by the functionality of the Social Network and the ability to access the information of user profiles.
Rectification: Only you can do it; to be satisfied in relation to that information that is under the control of VILLAS PLANET SL, for example, to eliminate comments published on the page itself.
Normally, this right should & aacute; exercise it before the Social Network.
Cancellation and / or Opposition: As in the previous case, it can only be done; Satisfy in relation to that information that is under the control of VILLAS PLANET SL, for example, cease to be attached to the profile.
VILLAS PLANET SL perform & aacute; the following actions: Access to public profile information.
Publication in the user profile of all the information already published in the page of
VILLAS PLANET SL.
Send personal and individual messages through the Social Network channels. Updates
of the status of the page to be published in the users profile.
The user can always control his connections, eliminate the contents that cease to interest him
and restrict with whom he shares his connections, for that he must & aacute; Access your privacy settings.
Publications
The user, once joined to the VILLAS PLANET SL page, may & Post in the last comments, links, images or photographs or any other type of multimedia content supported by the Social Network. The user, in all cases, must be the owner thereof,
enjoy copyright and intellectual property rights or have the consent of the affected third parties. Any publication on the page is expressly prohibited, be it texts, graphics, photographs, videos, etc., etc. that attempt or are likely to violate morals,
& eacute; tica, good taste or decorum, and / or that infringe, violate or violate the rights of intellectual or industrial property, the right to the image or the Law. In these cases, VILLAS PLANET SL reserves the right to immediately remove the content, and may request permanent blocking of the user.
VILLAS PLANET SL will not be done responsible for the contents that a user has freely published.
The user must keep in mind that his publications will be known by the other users, so he / she is the main person responsible for their privacy.
The images that can be published on the page will not be stored in any file by
VILLAS PLANET SL, but still; that will remain on the Social Network.
Contests and promotions
VILLAS PLANET SL reserves the right to hold contests and promotions, in which it may & aacute;
Participate the user attached to your page. The bases of each one of them, when the Social Network platform is used for it, will be published in it. Always complying with the
LSSI-CE and any other standard that applies to it.
The Social Network does not sponsor, endorse or administer, in any way, any of our promotions,
or est & aacute; associated with none of them.
> Advertising
VILLAS PLANET SL use & aacute; The Social Network to advertise your products and services, in any case,
if
decides to process your contact information to carry out direct commercial prospecting actions, it will be aacute;
always, complying with the legal requirements of the GDPR and the LSSI-CE.
It will not be considered & aacute; Advertise the fact to recommend to other users the page of VILLAS PLANET SL
so that they can also enjoy the promotions or be informed of their activity.
Below we detail the link to The Social Networks privacy policy:
Facebook: https://www.facebook.com/help/323540651073243/
Twitter: https://twitter.com/privacy
Instagram: http://instagram.com/about/legal/privacy/
Pinterest: http://es.about.pinterest.com/terms/
Linkedin: http://www.linkedin.com/legal/privacy-policy?trk=hb_ft_priv