VER TODA LA GALERIA

Ubicada en el corazón del triángulo formado por Manacor, Petra y Felanitx, esta finca rústica ofrece la rara oportunidad de construir hoy mismo la casa de tus sueños en un entorno auténticamente mallorquín, con licencia vigente y proyecto listo para ejecutar.
Con una superficie de 15.550 m², la parcela se encuentra completamente delimitada por pared seca tradicional, y ofrece vistas despejadas a la emblemática montaña de Bonany —símbolo del paisaje de Petra—, y a lo lejos, la silueta de la Serra de Tramuntana.
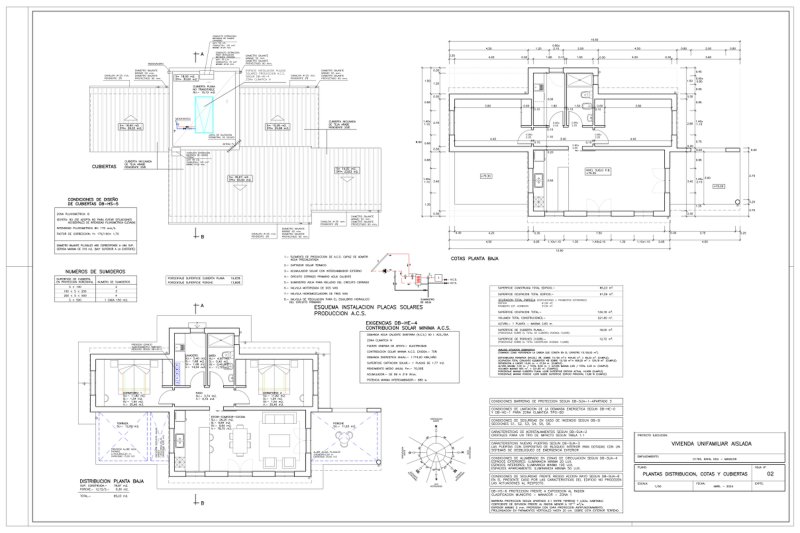
El proyecto aprobado contempla la construcción de una vivienda unifamiliar de 129 m² construidos y 92 m² útiles, con un diseño que combina la esencia de la arquitectura mediterránea tradicional —tejado a dos aguas con teja árabe— con una distribución moderna y funcional: salón-comedor con cocina abierta, dos dormitorios, un baño completo y dos agradables terrazas exteriores, una de ellas un amplio porche de entrada que conecta directamente con la zona de día.
La finca es completamente autosuficiente: cuenta con un pozo de agua propio operativo, un sistema de energía fotovoltaica diseñado en el proyecto para garantizar independencia energética, y una depuración de aguas residuales conforme a la normativa vigente. El acceso es cómodo desde dos caminos rurales, y el terreno, prácticamente llano con una suave pendiente, resulta ideal para desarrollar el jardín y áreas exteriores.
Como valor añadido, la finca se encuentra en una zona de alto nivel paisajístico y residencial, flanqueada por tres majestuosas propiedades en sus límites norte y sur, lo que aporta prestigio, tranquilidad y seguridad al entorno.
Una oportunidad única para quien busca construir sin esperas, en una localización estratégica, tranquila y con carácter, en el corazón de Mallorca.
Agua (Pozo propio)
Desagüe (Fosa séptica)
Electricidad (Energia solar)
Aeropuerto : 46 km
Pueblo/Ciudad : 10,5 km
Playa de arena : 24 km
Supermercado : 10 km
Tren : 10,2 km
Restaurante : 6,5 km
Hospital : 15 km
Farmacia : 10 km
Campo de Golf : 29 km

En cumplimiento de la Ley 34/2002, de 11 de julio, de Servicios de la Sociedad de la Información y de Comercio Electrónico (LSSI-CE), VILLAS PLANET SL informa que es titular del sitio web https://www.villasplanet.com/es. De acuerdo con la exigencia del artículo 10 de la citada Ley, VILLAS PLANET SL informa de los siguientes datos:
El titular de este sitio web es VILLAS PLANET SL, con CIF B57264848 y domicilio social en MAR I ESTANY, 1 LOCAL A 07400, ALCUDIA (ILLES BALEARS), inscrita en el Registro Mercantil, en el tomo 2050, folio 2, hoja PM 46696 e inscripción 5º. La dirección de correo electrónico de contacto con la empresa es: info@villasplanet.com
Usuario y régimen de responsabilidades
La navegación, acceso y uso por el sitio web de VILLAS PLANET SL confiere la condición de usuario, por la que se aceptan, desde la navegación por el sitio web de VILLAS PLANET SL, todas las condiciones de uso aquí establecidas sin perjuicio de la aplicación de la correspondiente normativa de obligado cumplimiento legal según el caso.
El sitio web de VILLAS PLANET SL proporciona gran diversidad de información, servicios y datos. El usuario asume su responsabilidad en el uso correcto del sitio web. Esta responsabilidad se extenderá a:
· La veracidad y licitud de las informaciones aportadas por el usuario en los formularios extendidos por VILLAS PLANET SL para el acceso a ciertos contenidos o servicios ofrecidos por el web.
· El uso de la información, servicios y datos ofrecidos por VILLAS PLANET SL contrariamente a lo dispuesto por las presentes condiciones, la Ley, la moral, las buenas costumbres o el orden público, o que de cualquier otro modo puedan suponer lesión de los derechos de terceros o del mismo funcionamiento del sitio web.
Política de enlaces y exenciones de responsabilidad
VILLAS PLANET SL no se hace responsable del contenido de los sitios web a los que el usuario pueda acceder a través de los enlaces establecidos en su sitio web y declara que en ningún caso procederá a examinar o ejercitar ningún tipo de control sobre el contenido de otros sitios de la red. Asimismo, tampoco garantizará la disponibilidad técnica, exactitud, veracidad, validez o legalidad de sitios ajenos a su propiedad a los que se pueda acceder por medio de los enlaces.
VILLAS PLANET SL declara haber adoptado todas las medidas necesarias para evitar cualquier daño a los usuarios de su sitio web, que pudieran derivarse de la navegación por su sitio web. En consecuencia, VILLAS PLANET SL no se hace responsable, en ningún caso, de los eventuales daños que por la navegación por Internet pudiera sufrir el usuario.
Modificaciones
VILLAS PLANET SL se reserva el derecho a realizar las modificaciones que considere oportunas, sin aviso previo, en el contenido de su sitio web. Tanto en lo referente a los contenidos del sitio web, como en las condiciones de uso del mismo, o en las condiciones generales de contratación. Dichas modificaciones podrán realizarse a través de su sitio web por cualquier forma admisible en derecho y serán de obligado cumplimiento durante el tiempo en que se encuentren publicadas en el web y hasta que no sean modificadas válidamente por otras posteriores.
Servicios de reserva por internet
Ciertos contenidos de la website de VILLAS PLANET SL contienen la posibilidad de reservar por Internet. El uso de los mismos requerirá la lectura y aceptación obligatoria de las condiciones generales de reserva establecidas al efecto por VILLAS PLANET SL.
Protección de datos
De conformidad con lo establecido en la normativa vigente en Protección de Datos de Carácter Personal, le informamos que sus datos serán incorporados al sistema de tratamiento titularidad de VILLAS PLANET SL con CIF B57264848 y domicilio social sito en MAR I ESTANY, 1 LOCAL A 07400, ALCUDIA (ILLES BALEARS), con la finalidad de poder facilitar, agilizar y cumplir los compromisos establecidos entre ambas partes. En cumplimiento con la normativa vigente, VILLAS PLANET SL informa que los datos serán conservados durante el plazo estrictamente necesario para cumplir con los preceptos mencionados con anterioridad.
Le informamos que trataremos sus datos conforme a la existencia de su consentimiento y a la relación contractual que mantenemos con usted.
VILLAS PLANET SL informa que procederá a tratar los datos de manera lícita, leal, transparente, adecuada, pertinente, limitada, exacta y actualizada. Es por ello que VILLAS PLANET SL se compromete a adoptar todas las medidas razonables para que estos se supriman o rectifiquen sin dilación cuando sean inexactos.
De acuerdo con los derechos que le confiere el la normativa vigente en protección de datos podrá ejercer los derechos de acceso, rectificación, limitación de tratamiento, supresión, portabilidad y oposición al tratamiento de sus datos de carácter personal así como del consentimiento prestado para el tratamiento de los mismos, dirigiendo su petición a la dirección postal indicada más arriba o al correo electrónico info@villasplanet.com
Podrá dirigirse a la Autoridad de Control competente para presentar la reclamación que considere oportuna.
Certificado SSL (Secure Sockets Layer)
El CERTIFICADO SSL proporciona autenticación, privacidad y seguridad de la información entre VILLAS PLANET SL y el usuario.
VILLAS PLANET SL dispone de un certificado de seguridad que se utiliza por CERTIFICADO SSL para realizar conexiones seguras.
En este proceso se establecen varios parámetros para realizar la conexión de forma segura y se establece usando llaves preestablecidas, codificando y descodificando todos los datos enviados hasta que la conexión sea cerrada.
Propiedad intelectual e industrial
VILLAS PLANET SL por sí misma o como cesionaria, es titular de todos los derechos de propiedad intelectual e industrial de su página web, así como de los elementos contenidos en la misma (a título enunciativo, imágenes, sonido, audio, vídeo, software o textos; marcas o logotipos, combinaciones de colores, estructura y diseño, selección de materiales usados, programas de ordenador necesarios para su funcionamiento, acceso y uso, etc.), titularidad de VILLAS PLANET SL. Serán, por consiguiente, obras protegidas como propiedad intelectual por el ordenamiento jurídico español, siéndoles aplicables tanto la normativa española y comunitaria en este campo, como los tratados internacionales relativos a la materia y suscritos por España.
Todos los derechos reservados. En virtud de lo dispuesto en la Ley de Propiedad Intelectual, quedan expresamente prohibidas la reproducción, la distribución y la comunicación pública, incluida su modalidad de puesta a disposición, de la totalidad o parte de los contenidos de esta página web, con fines comerciales, en cualquier soporte y por cualquier medio técnico, sin la autorización de VILLAS PLANET SL.
El usuario se compromete a respetar los derechos de Propiedad Intelectual e Industrial titularidad de VILLAS PLANET SL. Podrá visualizar los elementos del portal e incluso imprimirlos, copiarlos y almacenarlos en el disco duro de su ordenador o en cualquier otro soporte físico siempre y cuando sea, única y exclusivamente, para su uso personal y privado. El usuario deberá abstenerse de suprimir, alterar, eludir o manipular cualquier dispositivo de protección o sistema de seguridad que estuviera instalado en las páginas de VILLAS PLANET SL.
Acciones legales, legislación aplicable y jurisdicción
VILLAS PLANET SL se reserva, asimismo, la facultad de presentar las acciones civiles o penales que considere oportunas por la utilización indebida de su sitio web y contenidos, o por el incumplimiento de las presentes condiciones.
La relación entre el usuario y el prestador se regirá por la normativa vigente y de aplicación en el territorio español. De surgir cualquier controversia las partes podrán someter sus conflictos a arbitraje o acudir a la jurisdicción ordinaria cumpliendo con las normas sobre jurisdicción y competencia al respecto. VILLAS PLANET SL tiene su domicilio en ILLES BALEARS, España.

POLÍTICA DE PRIVACIDAD REDES SOCIALES
De conformidad con lo establecido en la normativa vigente en Protección de Datos de Carácter
Personal (RGPD) y la Ley 34/2002, de 11 de julio, de Servicios de la Sociedad de la Información y
de Comercio Electrónico (LSSI-CE), VILLAS PLANET SL informa a los usuarios, que ha procedido a
crear un perfil en las Redes Sociales Facebook, Twitter, Instagram, Pinterest, Linkedin, con
la finalidad principal de publicitar sus productos y servicios.
Datos de VILLAS PLANET SL:
CIF: B57264848
DIRECCIÓN: MAR I ESTANY, 1 LOCAL A 07400, ALCUDIA (ILLES BALEARS) CORREO ELECTRÓNICO:
info@villasplanet.com
DOMINIO WEB: https://www.villasplanet.com/es
El usuario dispone de un perfil en la misma Red Social y ha decidido unirse a la página creada por
VILLAS PLANET SL, mostrando así interés en la información que se publicite en la Red. Al unirse a
nuestra página, nos facilita su consentimiento para el tratamiento de aquellos datos personales
publicados en su perfil.
El usuario puede acceder en todo momento a las políticas de privacidad de la propia Red Social, así
como configurar su perfil para garantizar su privacidad.
VILLAS PLANET SL tiene acceso y trata aquella información pública del usuario, en especial, su
nombre de contacto. Estos datos, sólo son utilizados dentro de la propia Red Social. No son
incorporados a ningún fichero.
En relación a los derechos de acceso, rectificación, limitación de tratamiento, supresión,
portabilidad y oposición al tratamiento de sus datos, de los que usted dispone y que pueden ser
ejercitados ante VILLAS PLANET SL, de acuerdo con el RGPD, debe tener en cuenta los siguientes
matices:
Acceso: Vendrá definido por la funcionalidad de la Red Social y la capacidad de acceso a la
información de los perfiles de los usuarios.
Rectificación: Sólo podrá satisfacerse en relación a aquella información que se encuentre bajo el
control de VILLAS PLANET SL, por ejemplo, eliminar comentarios publicados en la propia página.
Normalmente, este derecho deberá ejercerlo ante la Red Social.
Cancelación y/u Oposición: Como en el caso anterior, sólo podrá satisfacerse en relación a aquella
información que se encuentre bajo el control de VILLAS PLANET SL, por ejemplo, dejar de estar unido
al perfil.
VILLAS PLANET SL realizará las siguientes actuaciones: Acceso a la información pública del perfil.
Publicación en el perfil del usuario de toda aquella información ya publicada en la página de
VILLAS PLANET SL.
Enviar mensajes personales e individuales a través de los canales de la Red Social. Actualizaciones
del estado de la página que se publicarán en el perfil del usuario.
El usuario siempre puede controlar sus conexiones, eliminar los contenidos que dejen de interesarle
y restringir con quién comparte sus conexiones, para ello deberá acceder a su configuración de
privacidad.
Publicaciones
El usuario, una vez unido a la página de VILLAS PLANET SL, podrá publicar en ésta última
comentarios, enlaces, imágenes o fotografías o cualquier otro tipo de contenido multimedia
soportado por la Red Social. El usuario, en todos los casos, debe ser el titular de los mismos,
gozar de los derechos de autor y de propiedad intelectual o contar con el consentimiento de los
terceros afectados. Se prohíbe expresamente cualquier publicación en la página, ya sean textos,
gráficos, fotografías, vídeos, etc. que atenten o sean susceptibles de atentar contra la moral, la
ética, el buen gusto o el decoro, y/o que infrinjan, violen o quebranten los derechos de propiedad
intelectual o industrial, el derecho a la imagen o la Ley. En estos casos, VILLAS PLANET SL se
reserva el derecho a retirar de inmediato el contenido, pudiendo solicitar el bloqueo permanente
del usuario.
VILLAS PLANET SL no se hará responsable de los contenidos que libremente ha publicado un usuario.
El usuario debe tener presente que sus publicaciones serán conocidas por los otros usuarios, por lo
que él mismo es el principal responsable de su privacidad.
Las imágenes que puedan publicarse en la página no serán almacenadas en ningún fichero por parte de
VILLAS PLANET SL, pero sí que permanecerán en la Red Social.
Concursos y promociones
VILLAS PLANET SL se reserva el derecho a realizar concursos y promociones, en los que podrá
participar el usuario unido a su página. Las bases de cada uno de ellos, cuando se utilice para
ello la plataforma de la Red Social, serán publicadas en la misma. Cumpliendo siempre con la
LSSI-CE y con cualquier otra norma que le sea de aplicación.
La Red Social no patrocina, avala ni administra, de modo alguno, ninguna de nuestras promociones,
ni está asociada a ninguna de ellas.
>Publicidad
VILLAS PLANET SL utilizará la Red Social para publicitar sus productos y servicios, en todo caso,
si
decide tratar sus datos de contacto para realizar acciones directas de prospección comercial, será
siempre, cumpliendo con las exigencias legales del RGPD y de la LSSI-CE.
No se considerará publicidad el hecho de recomendar a otros usuarios la página de VILLAS PLANET SL
para que también ellos puedan disfrutar de las promociones o estar informados de su actividad.
A continuación detallamos el enlace a la política de privacidad de la Red Social:
• Facebook: https://www.facebook.com/help/323540651073243/
• Twitter: https://twitter.com/privacy
• Instagram: http://instagram.com/about/legal/privacy/
• Pinterest: http://es.about.pinterest.com/terms/
• Linkedin: http://www.linkedin.com/legal/privacy-policy?trk=hb_ft_priv